Działka inwestycyjna Opalenica, 5 Stycznia
Opalenica Pokaż na mapie ›
Dodane: Wtorek, 10 Marzec, 2026 15:44
2 100 000 zł
404 zł/m2
Szczegóły ogłoszenia
- Kategoria: Działki i grunty / Sprzedaż
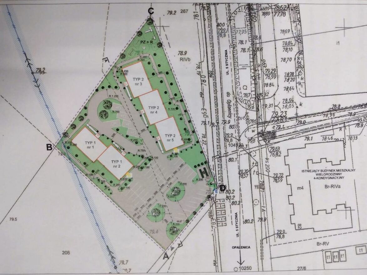
- Pow. działki:5200 m2
- Rodzaj działki:Inwestycyjna
- Sprzedaż:Pośrednik
- Cena: 2 100 000 zł / 404 zł/m2
Opis oferty
Działka inwestycyjna z WZ pod budownictwo wielorodzinne - Opalenica, 5200 m²Na sprzedaż atrakcyjna działka inwestycyjna o powierzchni 5200 m², zlokalizowana w miejscowości Opalenica (gmina Opalenica, powiat nowotomyski, woj. wielkopolskie). Nieruchomość posiada wydane ostateczne warunki zabudowy (WZ) na realizację 5 budynków wielorodzinnych z miejscami postojowymi, co czyni ją idealną propozycją dla deweloperów szukających gotowego terenu pod inwestycję mieszkaniową.
Najważniejsze informacje:
Powierzchnia działki: 5200 m²
Warunki zabudowy: 5 budynków wielorodzinnych + miejsca postojowe
Dostęp do mediów: pełne uzbrojenie - prąd, woda, gaz, kanalizacja (w ul. 5 Stycznia)
Dojazd: bezpośredni dostęp do drogi publicznej
Dokumentacja: warunki zabudowy + koncepcja architektoniczna
Stan prawny: pełna własność, księga wieczysta wolna od obciążeń
Cena: 2 200 000
Lokalizacja:
Działka znajduje się w bardzo dobrej lokalizacji - przy ul. 5 Stycznia, w pobliżu pełnej infrastruktury miejskiej:
- szkoły i przedszkola,
- sklepy, punkty usługowe,
- komunikacja publiczna (PKP, autobus),
- szybki dojazd do drogi krajowej oraz autostrady A2.
Opalenica to miejscowość o dużym potencjale rozwojowym, z rosnącym zapotrzebowaniem na nowoczesne mieszkania.
Zainteresowanych zapraszamy do kontaktu w celu uzyskania dokumentacji oraz umówienia wizyty na miejscu.
Powyższy opis ma charakter informacyjny i nie stanowi oferty handlowej w rozumieniu Kodeksu Cywilnego, a dane w nim podane mogą ulec zmianie.
Biuro Nieruchomości CASTLE zapewnia bezpieczeństwo transakcji oraz profesjonalną obsługę, aż do przekazania nieruchomości nowym właścicielom. Oferujemy także pomoc w doborze kredytu
Numer oferty: 195599
Sprawdź zainteresowanie tym ogłoszeniem
Wyświetlenia
Data dodania
Ostatnio widziany
Obserwujących
Wysłane zapytania
Odsłony telefonu
- Wypromuj ogłoszenie
- Zgłoś naruszenie
- Drukuj ulotkę
- Edytuj/usuń ogłoszenie
- Udostępnij ogłoszenie
- Dodaj na Facebook































